<meta name="robots" content="noindex, follow"/>
Площадь отапливаемого помещения, м2
90м²КПД, %
83%Материал печи
ЧугунМакс. длина поленьев, см
35смРасход топлива, кг/ч
1кг/ч - 2.7кг/чОбъем отопления, м³
270м³Производитель
KeddyСерия
K11Бесплатный выезд на замер и подбор оборудования
Гарантия от 1 года, сервисное обслуживание

Квалифицированный персонал

Надежный и безопасный монтаж
Печь-камин Keddy K11 SK1002 представляет собой современное угловое отопительное устройство с высоким КПД 83%, предназначенное для эффективного обогрева помещений площадью до 90 м². Модель сочетает в себе классический дизайн и передовые технологии отопления.
Идеально подойдет для владельцев загородных домов и дач, которые ценят надежность, эффективность и эстетику. Благодаря угловому расположению экономит пространство и создает уютную атмосферу в помещении.
Материал печи
ЧугунПроизводитель
KeddyСерия
K11Мощность (кВт)
4кВт - 9кВтДиаметр дымохода (мм)
125ммОбщая ширина (мм)
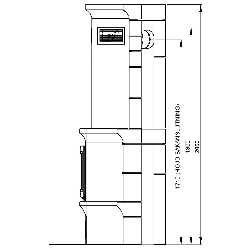
800ммОбщая высота (мм)
2000ммОбщая глубина (мм)
715ммОбщий вес (кг)
580кгРасположение
УгловоеМатериал корпуса
ЧугунМатериал облицовки
камень оливинДожиг газов
ДаСтекло с подъемом вверх
НетВодяной контур
НетПлощадь отапливаемого помещения, м2
90м²КПД, %
83%Подключение дымохода
заднееФутеровка топочной камеры
шамотДлительное горение
ДаВид топлива
ДроваМакс. длина поленьев, см
35смРасход топлива, кг/ч
1кг/ч - 2.7кг/чОбъем отопления, м³
270м³Мы предлагаем доставку от 2000 руб. для всех заказов от 10000 руб, обеспечивая высокое качество сервиса и надежность доставки.
Стоимость доставки по Лен. области для заказов от 10000 руб, начинается от 5000 руб. и гарантирует быструю и безопасную доставку вашего заказа.
Уважаемые покупатели ! Стоимость доставки в регионы Вы можете узнать, обратившись в любую из представленных транспортных компаний: "Деловые Линии", "ПЭК", "ЖелДор Экспедиция", “Алсена”, “КИТ”, “ГлавДоставка”, “Регион Групп”
Санкт-Петербург, Выборгское ш., 234
Пн-Пт с 10:00 до 18:00
Парголово – Торговый центр239
м
Парголово590 м
Детская туристическая база600
м